为贯彻落实省委省政府关于全面提升渔船本质安全水平工作要求,加快淘汰安全状况差、抗风险能力低的渔船,积极推进渔船“木改钢”升级改造,促进渔船装备更新,我厅组织开展了辽宁省海洋捕捞渔船标准化船型参数表的编制工作,目前已形成《海洋捕捞渔船标准化船型参数表》(附件1)和渔船船型总布置图(附件2),现向社会公开征求意见。公众和各级渔业主管部门可通过以下途径和方式,于2月5日前反馈意见。
联系人:李 明 13384116591
邮 箱:liming19861111@163.com
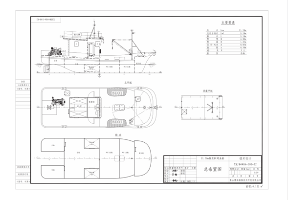
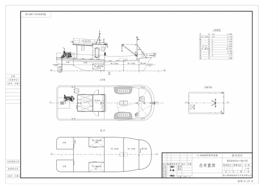
附件1:海洋捕捞渔船标准化船型参数表(第二批)
附件2:渔船船型总布置图
辽宁省农业农村厅
2026年1月30日
附件1
| 海洋捕捞渔船标准化船型参数表(第二批) |
|||||||||
| 序号 |
图纸名称 |
材质 |
总长Loa(m) |
船长L(m) |
型宽B(m) |
型深D(m) |
总吨 |
主机功率 |
版权单位 |
| 1 |
10.00m 钢质刺网渔船 |
钢质 |
10.00 |
7.80 |
3.20 |
1.10 |
6 |
8.8 |
象山博海船舶技术开发有限公司 |
| 2 |
10.50m 钢质刺网渔船 |
钢质 |
10.50 |
7.97 |
3.60 |
1.20 |
8 |
11.03 |
象山博海船舶技术开发有限公司 |
| 3 |
11.50m 钢质刺网渔船 |
钢质 |
11.50 |
9.18 |
4.00 |
1.25 |
12 |
14.7 |
象山博海船舶技术开发有限公司 |
| 4 |
13.00m 钢质刺网渔船 |
钢质 |
13.00 |
9.77 |
4.50 |
1.25 |
16 |
17.6 |
象山博海船舶技术开发有限公司 |
| 5 |
13.50m 钢质刺网渔船 |
钢质 |
13.50 |
10.23 |
4.80 |
1.40 |
19 |
22 |
象山博海船舶技术开发有限公司 |
附件2





辽宁省农业农村厅
Department of Agriculture and Rural Affairs of LiaoNing Province
地址:沈阳市和平区太原北街2号 邮编:110001 电话:024-23448867 | 辽ICP备18016972号 |
政府网站标识码:2100000008
辽公网安备 21010202000566号